New Homes Conway - Site will list all new homes in Conway, SC
New Homes in Conway South Carolina
(843) 940-3609

This New Homes in Conway site is focused solely on providing a simplified guide to all of the new home communities in Conway, SC. This web site is independently managed to serve and support development of the Conway community and is a unique Conway new home resource. All Conway new home communities are presented without the influence or dependence of community or builder advertising. Input to improving the quality of this community resource presenting new construction in Conway is welcomed and appreciated. Information on this site was last updated February 2026.
The Reserve at Elmhurst
Conway New Home Community By D. R. Horton
Cultra Road & Oak Street, Conway, SC, 29526
The Reserve at Elmhurst in Conway
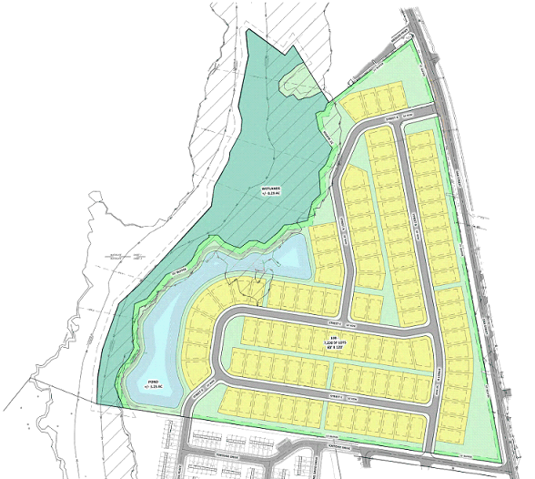
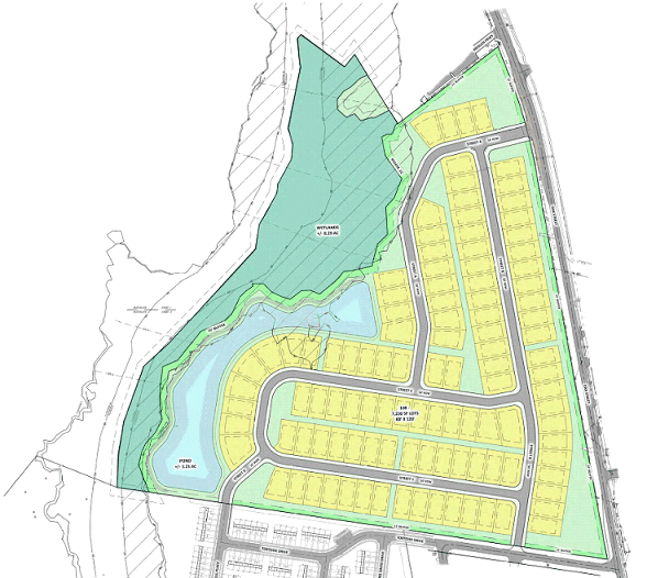
Preliminary Site Plan for The Reserve at Elmhurst
For Information Purposes Only – Not For Distribution
Preliminary Site Plan for Elmhurst Crossing - for information priposes only - data courtest Conway City Council
information purposes only
Data subject to change
Data courtesy Conway City Council
Prices (estimate only) Starting from :
Summary of this Conway New Home Community:
The new home community of The Reserve at Elmhurst is conveniently located off of Cultra Road just a short distance from downtown Conway.

This 109.13 acre piece of land where The Reserve at Elmhurst is being planned is in the process of being rezoned from Commercial Forest Agriculture to Medium Density Residential.  In addition, a petition to annex the property into the city of Conway for residential development has been submitted.

The potential development of The Reserve at Elmhurst is currently in the design phase and expected to be submitted for review in the near future. A preliminary sketch plan proposed this project to be developed in 3 phases, containing a total of 125 single-family homes on approximately 45.62 acres of land.

Phase 1 - 29 single-family homes in the Reserve at Elmhurst
Phase 2 - 48 single-family homes in the Reserve at Elmhurst
Phase 3 - 48 single-family homes in the Reserve at Elmhurst

The Reserve at Elmhurst would be a next door neighbor to the existing subdivision of Midtown Village.

D. R. Horton will be the builder in The Reserve at Elmhurst.  D. R. Horton is actively building in this area off of Cultra Road in Conway.  D. R. Horton is currently building in Kingston Bay and Chapman Village.

As of November of 2025, D. R. Horton has not yet announced timing for development in The Reserve at Elmhurst.

Existing Homes for Sale in this Conway New Home Community:
Homes for Sale in The Reserve at Elmhurst
Conway new home community news
New Construction in Conway - all active Listings
Conway new home community news
The Conway community is rapidly growing and the new construction opportunities in Conway are ever-changing. A significant amount of time is dedicated to ensuring that the content on this site is comprehensive and accurate. The efforts of our sponsors are greatly appreciated.
New Homes in Conway
Primary Sponsor
Vsansant Realty Group - Full service real estate brokerage serving Myrtle Beach.
(843) 940-3609

Links to Useful Resources for Longs, SC